plan-épszer
Referenciák
Cégünk rengeteg referenciamunkával rendelkezik, amelyek akár személyesen is megtekinthetőek! Megbízóink többségével az építkezést követően is jó kapcsolatot ápolunk, így komoly érdeklődés esetén akár egy helyszíni bejárásra is alkalmat tudunk biztosítani. Valamint arra is van lehetőséged, hogy a jelenleg zajló építkezéseinket munka közben járdkörbe, ahol megismerheted csapatunkat, munkaeszközeinket, munkastílusunkat.
Lakások
17
Parkolóhelyek
15
Szintek
5
Lakás méretek
50-110 m2
Befejezés
2026. II. félév
Helyszín
A Postakertben a Szoboszlói út és Gyár utca sarkán helyezkedik el, 10 perces sétára a belvárostól. A szomszédban található a Szatmári Épületgépészet és a Szoboszlói Úti Általános Iskola, továbbá több élelmiszerbolt és étterem is.
Építési telek
Az ingatlan egy 980 m2-es területen fekszik. A lakások fele a Gyár utcára néz, míg a másik fele a vele szomszédos épületre, így a Szoboszlói út irányába nincsennek ablakok.
A Gyár utca irányába Észak-keleti tájolásúak a lakások, míg a másik oldal Dél-nyugati tájolású.
Koncepció
Az épület 5 szintből áll. Mélygarázs, földszint és 3 emelet. A földszinti lakások mindegyike privát kertkapcsolatos.
Az emeletenként 5-5 lakás, a harmadik emeleten pedig 2 penthouse lakás van tetőterasszal. A szinteket egy 8 személyes felvonó köti össze.
Parkoló, tárolók
A társasház mélygarázsában 15 db parkoló, és 5 db tároló található, ezek mindegyike külön megvásárolható
Műszaki tartalom
A+ Energetikai besorolás, 15cm homlokzati hőszigetelés, hőszigetelt műanyag nyílászárók 3rtg-ű üvegezéssel, melegperemes kialakítással, 2 db levegő-víz hőszivattyú hőtermelő padlófűtéssel lakásonkénti termosztáttal, és lakásonként 1 db 3,5kW klímával
Kedvezmények
Saját fizetési kondiciódnak megfelelően válaszhatsz fizetési ütemezést kedvezmények igénybevételével
5% Áfa
Igénybevehető kedvezmények 5% lakásáfa
CSOK+ Igényelhető
Teljeskörű ügyintézéssel segítünk hogy hitel igénylésében
Választási lehetőségek
Vevő saját igénye szerinti lakáskialakítás
Elérhető Lakások
- Szoboszlói út 11.
001/B
Ár:
75 000 000 Ft
Kedvezménnyel:
68 181 818 Ft
A kedvezmény feltételeiről érdeklődjön elérhetőségeink bármelyikén!
Alapterület:
48,28 m2
+ 12,08 m2 terasz
+ 39,45 m2 udvar
- Szoboszlói út 11.
102/A
Ár:
74 000 000 Ft
Kedvezménnyel:
67 272 727 Ft
A kedvezmény feltételeiről érdeklődjön elérhetőségeink bármelyikén!
Alapterület:
53,22 m²
- Szoboszlói út 11.
102/B
Ár:
67 000 000 Ft
Kedvezménnyel:
60 909 091 Ft
A kedvezmény feltételeiről érdeklődjön elérhetőségeink bármelyikén!
Alapterület:
45,46 m²
+ 4,10 m² erkély
- Szoboszlói út 11.
201/B
Ár:
70 000 000 Ft
Kedvezménnyel:
63 636 364 Ft
A kedvezmény feltételeiről érdeklődjön elérhetőségeink bármelyikén!
Alapterület:
48,28 m²
+ 3,95 m² erkély
- Szoboszlói út 11.
202/A
Ár:
74 000 000 Ft
Kedvezménnyel:
67 272 727 Ft
A kedvezmény feltételeiről érdeklődjön elérhetőségeink bármelyikén!
Alapterület:
53,22 m²
- Szoboszlói út 11.
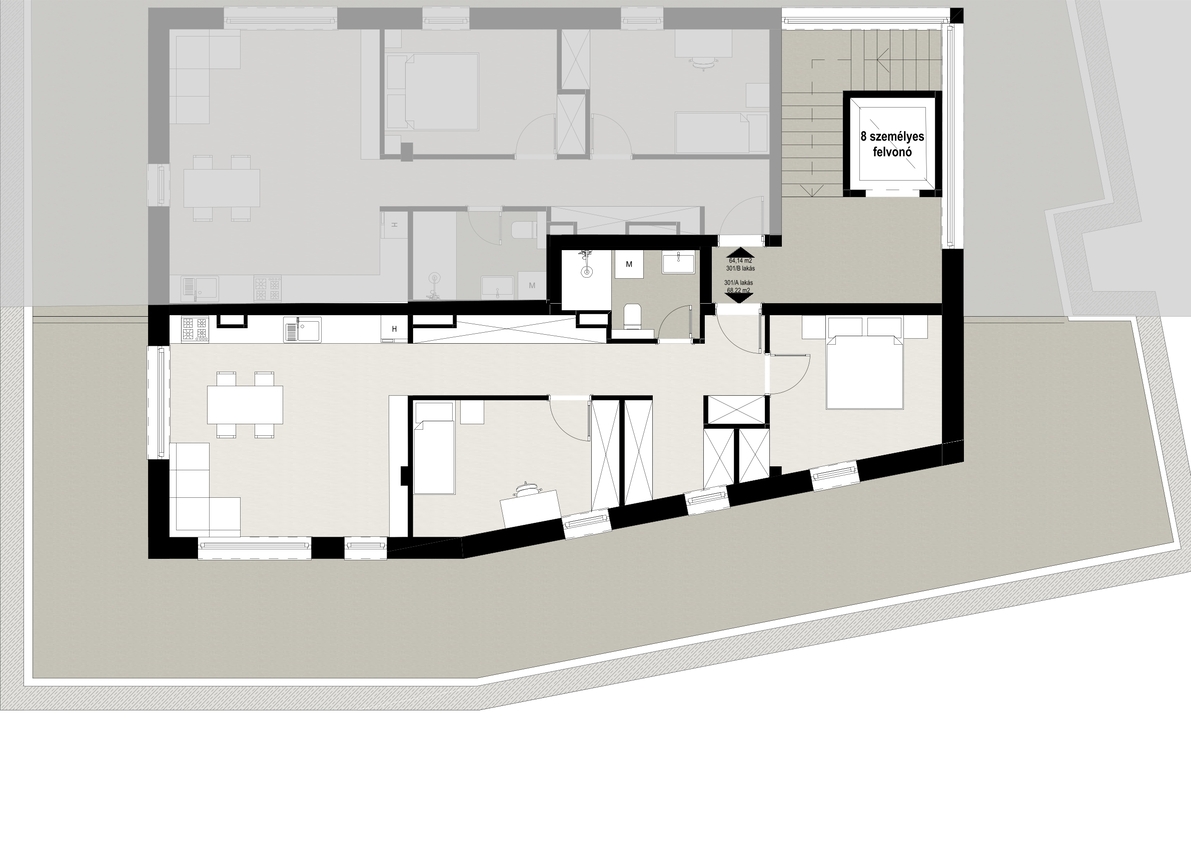
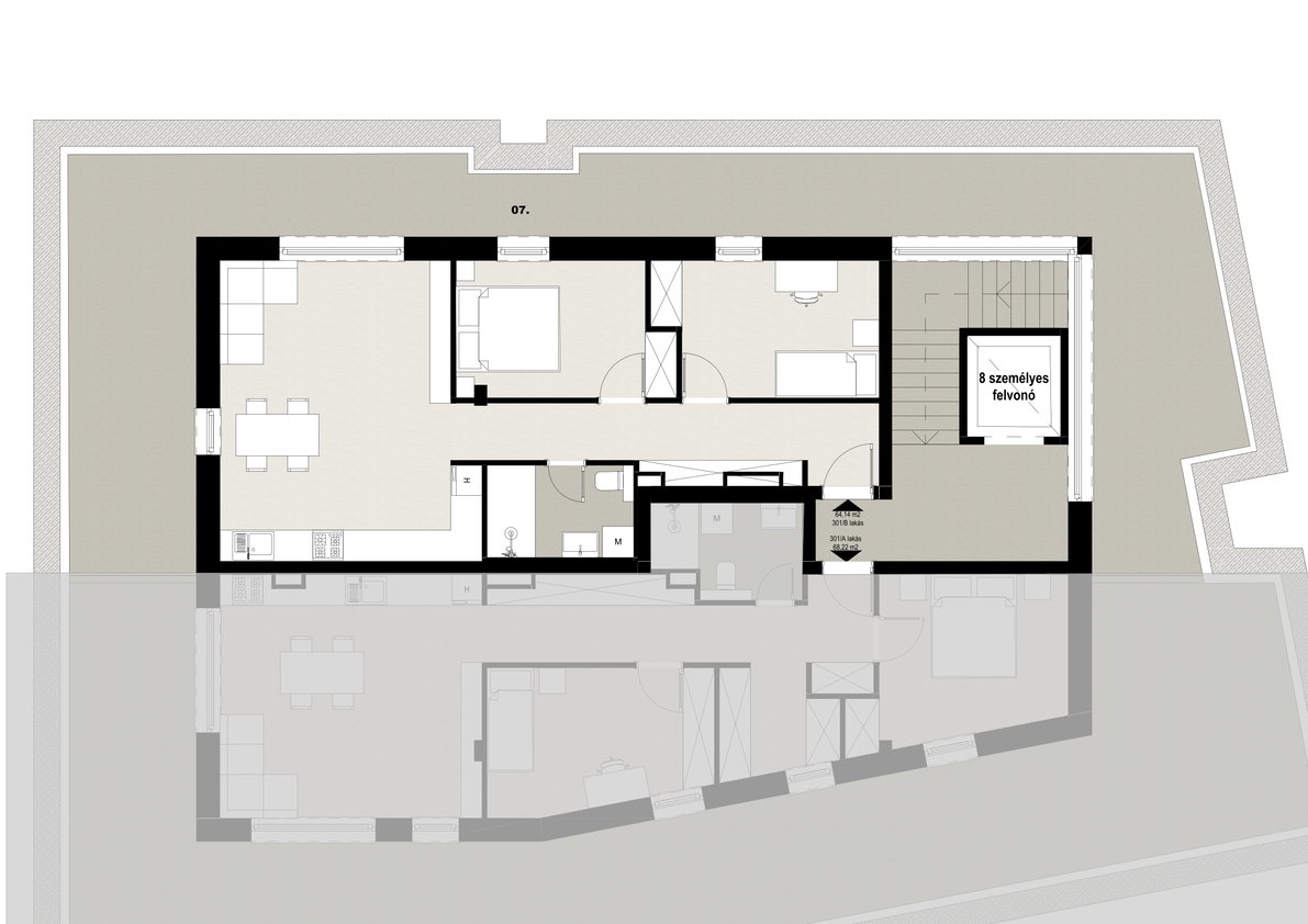
301/A
Ár:
116 000 000 Ft
Kedvezménnyel:
105 454 545 Ft
A kedvezmény feltételeiről érdeklődjön elérhetőségeink bármelyikén!
Alapterület:
68,19 m²
+ 70,71 m² tetőterasz
- Szoboszlói út 11.
301/B
Ár:
103 000 000 Ft
Kedvezménnyel:
93 636 364 Ft
A kedvezmény feltételeiről érdeklődjön elérhetőségeink bármelyikén!
Alapterület:
64,14 m²
+ 47,37 m² tetőterasz
Vedd fel velünk
a kapcsolatot
Székhelyünk
4029 Debrecen, Vágóhíd u. 2.
7/A épület. 3. em. 309-es ajtó
Telefonszámunk
+36 70 555 7877
+36 30 973 4849
+36 70 615 9573
E-mail cím
ertekesites@planepszer.hu
info@planepszer.hu